We are building a custom home on 3 acres just outside Moscow, Idaho. We are acting as our own general contractor, Matt is doing much of the work himself evenings and weekends, and cash flowing it from the sale of our previous home.
August 2021 – The decision to move is made as we have the opportunity and ability to make a cash offer on 3 acres with our friends purchasing the adjacent lot. I begin house plan hunting.
September 2021 – It is obvious that no house plan on the internet will quite meet our needs and work on our sloped view lot. I begin drawing plans using SmartDraw, spending 20+ hours a week on the project as I figure out what we want in a home.

October 2021 – The property deal closes after the seller had the electricity and natural gas brought to the lots and an access driveway installed. After research and inquiries, we decide to act as our own general contractor and cash flow our build after selling our current home which we own outright. Partly this was due to builder availability, but primarily due to our Dave Ramsey diligence earning us a 0 credit rating, making a construction loan difficult.
November 2021 – We get pretty close on our own drawn plans to what we want in a home and sign a contract with a home designer local to the site to help us refine our plans and turn them into construction documents.

January 2022 – We move to Idaho into a 1300sqft rental so we can sell our Kennewick home and be on site as soon as the build can begin. With all the snow on the ground, it’s obvious that will be awhile, but we still have several design meetings before our construction documents are ready anyway.

February 2022 – We met several times with a home designer and finish tweaking it until it’s just right. We added a lighting plan and made sure there’d be outlets in the coat closet and in the floor by our game table. We sold the Kennewick house for more than double what we paid for it 12 year prior and $75K more than we listed with a closing scheduled for March. Now we wait for the final construction documents to be completed!

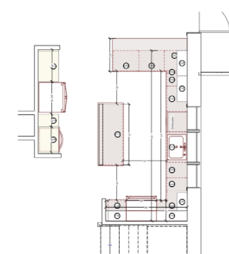
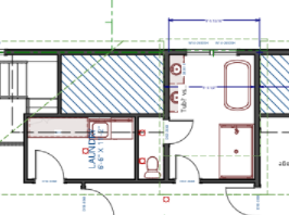
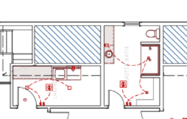
March 2022 – Our time in March has been spent waiting on construction documents and researching things like shower materials, kitchen cabinets, and light fixtures. One tweak we made to the house plan was in the master bathroom, which just seemed too big with too much wasted space. We decided we’d likely not use a separate soaking tub and nice as it might look, it wouldn’t look nice if I didn’t clean it, which I wouldn’t. Let’s be real. Here’s the adjustment we made, with the extra space going to the laundry room:


April 2022 – Snow is still occasionally falling and we discover that the well driller everyone recommends isn’t based in Moscow, but comes for a few months once a year. He says to call him back in June to get on his schedule for the summer. We went to a garage place where the owner said that the price of garage doors has gone up 1% every day for 18 months. That about sets the tone for the shopping-research phase of this process.
May 2022 – Tractor shopping, job bidding, and materials shopping took up our May as we watch materials prices as well as gas prices rise. We’d love to find a builder who will do the foundation, walls, trusses, and roof, allowing us to contract out or complete the rest ourselves, but that research and network-building involves a lot of waiting. While waiting, Matt’s busy researching tools and options for every step of the process.
June 2022 – June feels like a waiting game as we try to get bids and talk to builders and contractors of various stripes. We started our own version of a takeoff spreadsheet as we got bids back and Matt bought a tractor and a fancy laser level. Early in the month, the truss company alerted us and the designer to an oversight in the plan and so they had to coordinate to ensure the girders were properly sized and placed. With that resolved, the truss package came in much, much higher than anticipated, and we began calculations for cost differences between our current design with attic trusses and just going up a full second floor with a less steep roof pitch, turning it into a farmhouse style. The truss guy we were working with left the company which accounted for a substantial delay in communication as we tried working these issues out.
On a note of progress, however, we also took advantage of Memorial Day sales and bought the white apron-front farmhouse kitchen sink, three light fixtures, and some power tools. At a baby shower Mystie went to, she talked to the hostess who had built their house ten years prior and was also a caterer; the hostess extolled induction over gas cooktops. After a research spree, Mystie landed on a great induction cooktop model at 50% off on Home Depot’s website and snapped it up.

It has been an incredibly wet year so far, so even though we had hoped to be underway with construction at this point, it wouldn’t have been possible with the weather anyway. So we keep researching and waiting and talking to people.
August 2022 – We decided to become our own builders and, since it’s too late in the year to begin now anyway, rework the plan to make it simpler to build ourselves. We’ll go for a simple rectangle house on a daylight basement.
October 2022 – We finished our house plan!

November 2022 – While finishing up preliminary measurements and site requirements on the land, Matt realized the house placement on the land was not optimum. It would be too close to Windmill Lane for comfort and oddly close to our neighbors for the space we have. So we determined first the best location on the land for the house, which, unfortunately, would not work with the current floor plan. The direction of the view and the approach and the slope was different, so the house would have to be different. Back to the drawing board. Will we be ready in the spring?

Someday there will be a house there where Matt stands.
May 2023 – Our new floor plan is ready and we apply for permits!

June 2023 – Matt buys a telehandler, ICF blocks, and arranges for a couple subcontractors to begin the excavation, septic, and footings.
July 2023 – The footings of the house are poured! Then we begin to build the ICF basement walls.



Yup, that’s me! Putting rebar into the wall cavity!
August 2023 – A week after our oldest son’s wedding, we pour concrete into the basement ICF walls! Plus, the well is drilled – 300 feet down and 50 gallons a minute!

October 2023 – Lots of work needs to go into the perimeter, the under-slab plumbing and leveling with gravel –


Then insulation, then the pex piping for radiant floor heating –

November 2023 – The work goes on apace.

December 2023 – Matt begins single-handedly installing the floor trusses for the first floor. Getting the truss and subfloor up now will give protection to the slab, which we’ll pour through a window opening when the weather allows after the trusses and subfloor are set.

January 2024 - Matt begins working at a new local job with Treefort Systems, with whom he negotiated one year of working only 3 days per week so he has 3 days to work full time on the house. How much can he do in one year by himself 3 days a week?
March & April 2024 - After the trusses were on and the subfloor added, it was time for some radiant floor heating and WALLS!







May 2023 - The next layer of trusses and the basement pad







June & July 2024 - Most importantly, our first granddaughter is born; secondarily, the next round of walls go up!








August 2024 - Lots of visible progress is made as Matt adds sheeting to the roof trusses!




September 2024 - Sheeting continues





October 2024 - The weather is still nice, but cooling down and getting darker earlier. How much farther can we get with Matt's year of part-time work??




November 2024 - How "dried in" can we get?? Our windows arrive off the shipping container from China. Wiring thousands of dollars overseas actually worked!




December 2024 - Matt succeeded in getting all the windows installed! And just in time as he severed a tendon in his finger just before Christmas, had it repaired the day after Christmas, and then had to not use that hand for nearly 3 months.

Thus, we resume in
March 2025 - on the heights, with only weekday evenings and Saturdays to work on the house now that he's back to working full time.


April - June 2025 - Single-handedly installing a metal roof with a bum finger is no joke.









July 2025 - Matt puts the finishing touches on the roof and builds temporary stairs out the front door and two flights of stairs inside the house. Stairs never felt so luxurious as after a year of using ladders!






August 2025 - Next up, interior basement walls!


October 2025 - Electrical work begins in the evenings by floodlight.

November 2025 - Second grandbaby arrives!




December 2025 & January 2026 - Electrical & plumbing continue...






February & March 2026 - Plumbing continues and our building permit will expire mid-March if we don't get an inspection, so Matt rents a digger and does his trenching for the electrical hookup and prepares posts for the porch and deck. They pass inspection and now we have another six months on the clock!





April 2026 - More plumbing and the state electrical inspection



Backstory
In May of 2021 our family began serious discussions about the advisability of leaving Washington State for political reasons. All around the United States, a great migration has been unrolling which will likely only solidify and deepen already pronounced political divides. Washington State, for its part, clearly wants to out-California California, and the governor still retained emergency powers which allow him to abrogate personal freedom in a way no American should put up with.
While many seem to assume everything will return to normal shortly, both time and trajectory indicate otherwise. Agendas that were hidden are now plain and bold, and there is no end in sight to the media and mandates continuing to manipulate people into behavior that increases power for those in power and decreases independence of mind, conscious, and action on the part of the average citizen. The consequences of policies over the last two years cannot be undone readily and no one is working to undo them in Washington State.
On the prediction that political turmoil in our country is only beginning and not soon to end, our family decided to move to a more stable, conservative state, to a town with several solid churches that recognize the need to actively educate and equip ordinary people to live godly lives in the midst of a crooked and twisted generation. We are only 2 1/2 hours from our hometown, so we can maintain our connections and easily visit family, but not only are we across the state line in Idaho, we are in a community that will give our children opportunities to rise to the needs of their times and a community large enough and aware enough to rally should times grow more troubled than they are.
In the midst of thinking, talking, and praying about this decision, each knock on each door we made swung that door wide open. We had these conversations with another family as well, and when they put out inquiries about the possibility of purchasing land, we soon had an opportunity for our families to each buy 3 acres adjacent to one another just outside town before the land went on the market.
So here we are, in Moscow, Idaho, building our own custom home in turbulent times.